Land3

Graveley Valley Farms Tract 10 $59,300


Current Price: $59,300
New Price:
Rate data provided daily by European Central Bank
Lot Acres
5.69

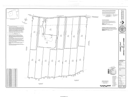
This 5.69-acre is a “Flag Shaped” tract with the flag being approximately 240 ft wide X 940 ft long. There is a 25 ft wide pole portion to allow access to this tract from Gravely Valley Road and for building the access road to the Flag portion of the property. I nice flat to gentle sloping area is near the north boundary of the Flag and would make a great building spot overlooking the valley and viewing the adjacent ridge. This area is overgrown with briars and small cedar trees. An old farm road descends from this area and possible could tie into a road developed to Gravely Valley Road. There is a finger starting at the ridge extending to an old logging road approximately ½ way in the Flag portion of the property prior to when the tract gets steep. The tract is basically fully wooded with cedar trees and spotty areas of overgrown pasture in the northern portion of the tract extending into hardwoods as you get to the south boundary. The Flag portion of the tract gets steep as you get near the south boundary which is the centerline of the ridge. An electrical line near Gravely Valley Road runs through the property and a drop would be easily obtained.


TR10 Gravely Valley Road
Eidson, Tennessee 37731
County: Hawkins
Sale Type: FOR SALE
Ref #: gvf-tr10-cp
Category: Wooded Land
Lot Acres
5.69
TR10 Gravely Valley Road
Eidson, Tennessee 37731
County: Hawkins
Sale Type: FOR SALE
Ref #: gvf-tr10-cp
Category: Wooded Land

Please complete the form below to ask a question or request a showing for this property. We will review your message and respond to you as soon as possible. Please add any additional notes or comments that we will need to know about.

 
TR10 Gravely Valley Road
Eidson, Tennessee 37731
County: Hawkins
Sale Type: FOR SALE
Ref #: gvf-tr10-cp
Category: Wooded Land

If you would like to send this property to a friend that you think may be interested, please complete the form below. To send this property to multiple friends, enter each email separated by a comma in the 'Friends Email' field.

 
TR10 Gravely Valley Road
Eidson, Tennessee 37731
County: Hawkins
Sale Type: FOR SALE
Ref #: gvf-tr10-cp
Category: Wooded Land
Please note that all listed yearly taxes are estimates. We do our best to make everything as accurate as we can. If there is anything in question or vital to your purchase please make sure you verify it with us before making any decisions.